中部営繕センター
設計・施工
実績
土地・不動産
お知らせ
企業情報
採用情報
お問い合わせ
LAND AND REAL ESTATE
土地・不動産
焼津市本町3丁目
仲介
中古
一戸建て
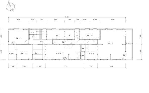
焼津駅まで徒歩14分 2階建 4SLDK
所在地
焼津市本町3丁目
価格
1,980万円
土地坪数
205.03㎡(公簿)/約62坪
建物坪数
263.12㎡/約79坪
建ぺい率
80%
容積率
400%
間取り
4SLDK
地目
宅地
土地権利
所有権
構造
木造/2階建
道路
一方( 西3.8m公道)
築年
23年
交通
JR焼津駅まで徒歩14分
駐車場
空有(2台)無料
小学校
焼津東小学校
中学校
焼津中学校
現況
空家
一覧へ戻る